방음 견적 문의드립니다.
페이지 정보
작성자 윤대희 작성일17-05-30 11:34 조회12,986회 댓글1건관련링크
본문
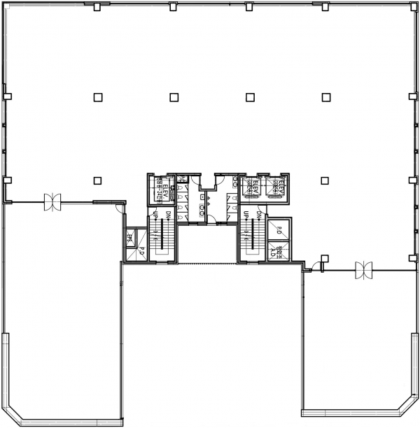
라운지바&클럽 형태의 업소입니다.
3면이 창문이라 창문을 모두 막는 형식으로 벽 방음을 진행하려 합니다.
하리까지의 높이는 3.2m이며 3면 둘레는 86.1m입니다(방음진행면적 275.52m2)
가능하다면 기둥 방음도 같이 진행하고 싶은데, 창문쪽(외곽 기둥) 9개, 내부 기둥 7개 있습니다.
빠른 연락 부탁드립니다.
3면이 창문이라 창문을 모두 막는 형식으로 벽 방음을 진행하려 합니다.
하리까지의 높이는 3.2m이며 3면 둘레는 86.1m입니다(방음진행면적 275.52m2)
가능하다면 기둥 방음도 같이 진행하고 싶은데, 창문쪽(외곽 기둥) 9개, 내부 기둥 7개 있습니다.
빠른 연락 부탁드립니다.
댓글목록
세계이엔지님의 댓글
세계이엔지 작성일문의 주셔서 감사합니다. 연락처를 남겨주시거나 연락 주시면 담당자를 통하여 답변 드리도록 하겠습니다.
